Kerrostalo 3h+k+kph+vh+et
Tennbyntie 40, Tennby, Parainen
Vuokra
830,00 €
Koko
74.0 m²
Vuosi
1972
VASTAREMONTOITU KOLMIO
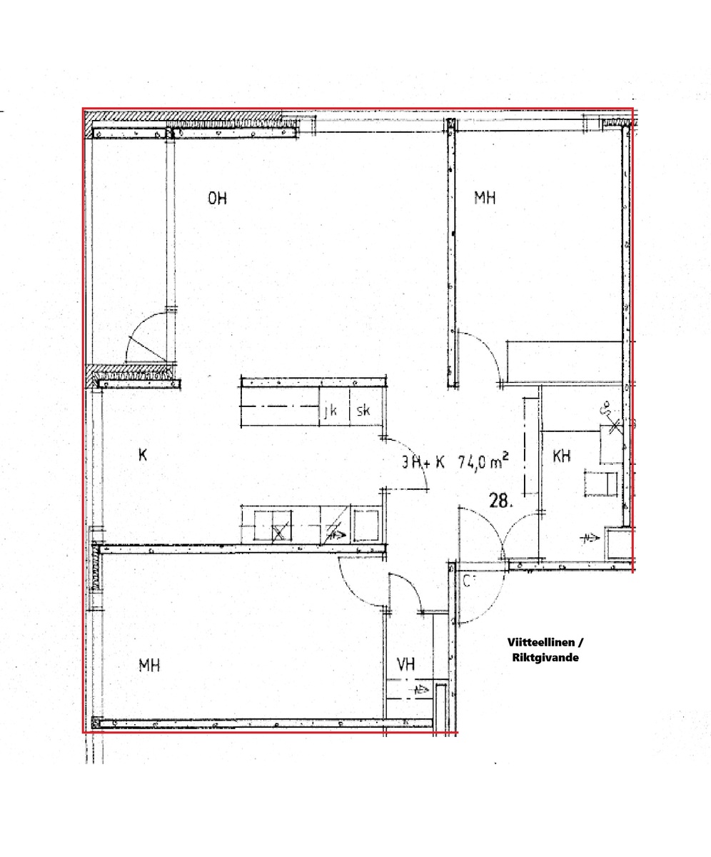
Tennbyntie 40 as 28, hissitalon viidennessä kerroksessa valoisa kulmahuoneisto. 3huonetta + keittiö ruokailutilalla, tilava eteinen, vaatehuone, kylpyhuone sekä parveke länteen, n. 74 m².
Vuokra 830€ + vesi 28€/hlö + veden perusmaksu 10,13€ + valokuitu 19€. Sähkö kulutuksen mukaan. 2kk takuu. Luottotiedot ja maksukyky oltava kunnossa. Vähintään vuoden sopimus. Vapautuu 1.4.
NYRENOVERAD TREA
Tennbyvägen 40 bost 28, ljus och rymlig hörnlägenhet på femte våningen i hisshus. 3 rum + kök med matplats, stor tambur, klädrum och badrum, balkong mot väster, ca 74 m².
Hyra 830€ + vatten 28€/pers+vattnets grundavgift 10,13€ + ljusfiber 19€. El enligt förbrukning. 2 månaders garanti. Kredituppgifter och betalningsförmågan bör vara i skick. Minst ett års avtal.
Ledig 1.4.
| Yhteystiedot |
|
|---|---|
|
| Kohdenumero | 20148937 |
|---|---|
| Sijainti |
|
| Tyyppi | Kerrostalo |
| Huoneistoselitelmä | 3h+k+kph+vh+et |
| Asuinpinta-ala m² | 74 m² |
| Yhteensä m² | 74 m² |
| Pinta-alan peruste | Yhtiöjärjestyksen mukainen, isännöitsijäntodistuksen mukainen |
| Kerros | 5 |
| Kerroksia | 6 |
| Rakennusvuosi (päättynyt) | 1972 |
| Käyttöönottovuosi | 1972 |
| Vapautuu | 01.04.2026 |
| Kuukausivuokra | 830,00 € |
|---|---|
| Vesimaksu |
|
| Lisätietoja maksuista | Veden perusmaksu 10,13€/kk Valokuitu 19€/kk Sähkö kulutuksen mukaan, vuokralainen tekee oman sähkösopimuksen. |
| Sauna |
|
|---|---|
| Parveke | Asunnossa on parveke |
| Parvekkeen kuvaus |
|
| Hissi | Taloyhtiössä on hissi |
| Asuntoon kuuluu |
|
| Yleiskunto | Hyvä |
| Lisätietoa kunnosta | Asunto on remontoitu 2025, uudet lattiat, seinät maalattu, keittiö uudistettu. Parvekkeelle on tulossa parvekelasit. |
| Energialuokka | D2007 |
| Lämmitysjärjestelmän kuvaus | Kauko |
| Asunnon tilat ja materiaalit |
|
|---|---|
| Katto |
|
| Keittiön kuvaus |
|
| Kylpyhuoneen kuvaus |
|
| Olohuoneen kuvaus |
|
| Makuuhuoneiden kuvaus |
|
| Taloyhtiön nimi | As Oy Morrenkala Bostads Ab |
|---|---|
| Isännöitsijän yhteystiedot | Dispomera Oy |
| Taloyhtiöön kuuluu |
|
| Energialuokka | D2007 |
| (Taloyhtiön) Rakennukseen tehdyt korjaukset ja remontit | Käyttövesiputket uusittu 1999, julkisivuja korjattu 2000, yhtiön sauna remontoitu 2004, hissi remontoitu 2006, vesikaton huopa uusittu 2007 ja viemäriputkien korjaus ruiskutusmenetelmällä 2012. Porraskäytävän laatoituksen uusinta 2015, rappukäytävän maalaus 2017. Ulko-oven avausmekanismin uusinta., 2020 rappuvalaistus uusittu. 2021 Sisääntulo korjattu, lämmönvaihtimien, patteritermostaattien ja venttiilien uusiminen. 2022 Tuuletusikkunoiden puuritilöiden uusiminen. 2023 Ilmanvaihdon puhdistus ja säätö. |
| Tiedossa olevat tulevat korjaukset/remontit | 5-vuotis suunnitelmassa jäteaitauksen ja valaistuksen uusiminen, alkuperäisten ikkunoiden ulkopuoleisen karmin huoltomaalaus sekä punaisten jukisivulevyjen maalaus ja kaikkien ikkunoiden tarkastus ulkopuolelta. Palovaroittimien asennus 2025. 2024 - 2028 Katon korjauksia tarpeen mukaan, alemman katon uusiminen. |
| Tontin pinta-ala | 3198.6 m² |
| Tontin omistus | Oma |
| Palvelut | Ruokakauppa kävelyetäisyydellä. |
|---|---|
| Liikenneyhteydet | Bussipysäkille n. 400 m. |
Tilaa sähköpostiisi esite, joka sisältää kohteen kaikki tiedot ja liitteet.
