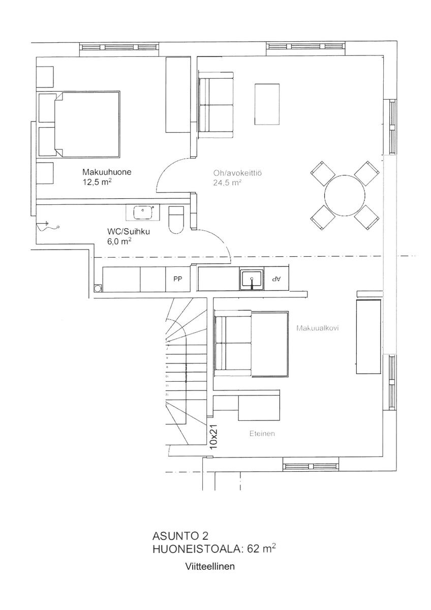
Houtskarin vanhaan kirjastossa uutta vastaava asunto hyvällä varustetasolla. Asunnon remontti valmistunut kesällä 2021. Asunnossa on omat vesi- ja sähkömittarit. Asunto 2 sijaitsee sisääntulokerroksessa ja siinä on eteinen, avokeittiö/olohuone, makuuhuone, makuualkovi ja kylpyhuone, n. 61 m². Soveltuu niin vakituiseksi asunnoksi kuin vapaa-ajan kohteeksi.
| 21232969 |
- Näsby
- Näsbyntie 197 as. 2
- 21760
- Parainen
|
| Kerrostalo |
| Asunto-osakeyhtiö |
| Oma |
| 3h+kt. |
| 61 m² |
| 61 m² |
| Yhtiöjärjestyksen mukainen |
| 1 |
| 2 |
| 1950 |
| 2021 |
| Heti |
| 109 000 € |
| 31 591 € |
| 77 409 € |
| 522,77 € |
| 431,27 € |
| 91,50 € |
|
| Huoneistosta maksetaan vesi ja sähkö kulutuksen mukaan. Varainsiirtovero 1,5 %. |
- Autopaikka: ulkoautopaikka
|
| Hyvä |
| G2018 |
| Sähkö |
- Pääasiallinen rakennusmateriaali: puu
|
- Harjakatto
- Profiilipeltikate
|
- Lattiamateriaalit: laminaatti
- Seinämateriaalit: maalattu
- Työtaso: puu
- Varusteet: astianpesukone
- Liesi: induktioliesi
- Jääkaappi ja pakastin: jääkaappi/pakastin
|
- Lattiamateriaalit: laatta
- Seinämateriaalit: kaakeli
- Varusteet: suihkukaappi, pesukoneliitäntä, lattialämmitys, wc-istuin, peilikaappi
|
- Lattiamateriaalit: laminaatti
- Seinämateriaalit: maalattu
|
- Lukumäärä: 2
- Lattiamateriaalit: laminaatti
- Seinämateriaalit: maalattu
|
| Asunto Oy Houtskarin Kirjasto |
| Memera Py, PL 6, 21661 Nauvo |
| Rakennusmateriaali: puurunkoinen, julkisivu rapattu. |
| G2018 |
| Rakennus on kantavaa runkoa lukuunottamatta saneerattu, saneeraus valmistunut 2021. |
| 2230 m² |
| Oma |
| Ruokakauppa noin 200 metriä. |
| Houtskariin kulkee maantielautta aikataululla ympäri vuoden. |
« Takaisin
Kiinnostuitko kohteesta?
Tilaa sähköpostiisi esite, joka sisältää kohteen kaikki tiedot ja liitteet.
Tilaa esite