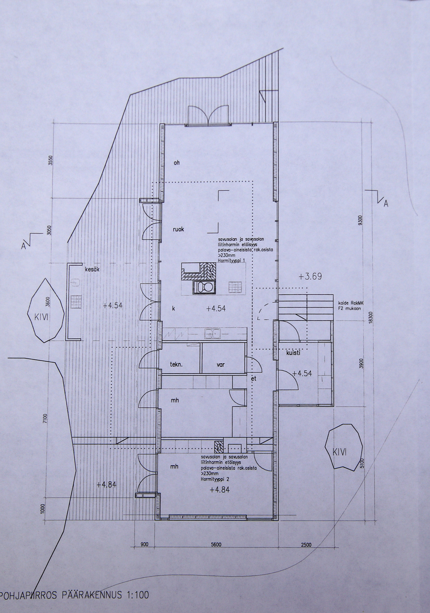
Mökki tai huvila k+ruok.tila+oh+2mh+kuisti
Klockskär , Kläckskär , Parainen
Hinta
1 300 000 €
Koko
110.0 m²
Vuosi
2007
OMA SAARI JA ISOT KALAVEDET
Kaunis Klockskär niminen oma saari 17,120 ha ja sen ympärillä omat kalavedet 124,33 ha Nauvon eteläsaaristossa. Kallio- ja kivirantaa kaikkiin ilmansuuntiin n. 2000 m. Kaunis monimuotoinen luonto. Saaren keskellä kohoaa n. 30 m merenpinnalta hieno näköalakallio, joista avautuu saariston kauneimmat selät. Suojainen satama-alue, jota ympäröi tukevat laiturit kolmelta sivulta, sinne pääsee myös isoilla veneillä. Saaressa on 5 kpl RA-vapaa-ajan rakennuspaikkoja, joista yksi on rakennettu. Arkkitehdin suunnittelemat ajattomat ja laadukkaat rakennukset, huvila 110 m², vierasmaja 24 m², rantasauna 25 m², 2 erillistä varastorakennusta 27 m² ja 21,6 m². Kaikki rakennukset rakennettu vuosina 2006-2008. Oma aurinkosähkövoimala, joka tuottaa kaiken saaressa tarvittavan sähkön. Porakaivo ja Biolan komp. puucee. Pala paratiisia, vastaavaa ei ole ollut ennen myynnissä !
EGEN HOLME OCH STORT FISKEVATTEN
Klockskär i Nagu södra skärgård, 17,120 ha vacker holme och fiskevatten 124,33 ha. 2 km berg- och stenstrand åt alla väderstreck. Varierande skärgårdsnatur med utsiktsplats på bergstopp 30 m.ö.h. Skyddad hamn för större båt, brygga på tre sidor. 5st RA-byggrätter varav en är byggd. Arkitektritade tidlösa och kvalitativa byggnader, sommarvilla 110 m², gäststuga 24 m², strandbastu 25 m², två förrådsbyggnader 27 m² o. 21,6 m². Alla byggda 2006-2008. Eget solkraftverk som tillverkar all el till holmen. Borrbrunn och Biolan komposterande utedass. En bit av paradiset – liknande har inte varit till salu tidigare!
| Yhteystiedot |
|
|---|---|
|
| Kohdenumero | 20485721 |
|---|---|
| Sijainti |
|
| Tyyppi | Mökki tai huvila |
| Omistusmuoto | Oma |
| Huoneistoselitelmä | K+ruok.tila+oh+2mh+kuisti |
| Asuinpinta-ala m² | 110 m² |
| Yhteensä m² | 110 m² |
| Lisätietoja pinta-alasta | Keittiö, ruokailutila, olohuone, kaksi makuuhuonetta, varastotila, eteinen ja kuisti. Tekninen tila. Isot terassit rakennuksen länsi-, pohjois- ja itäpuolella sekä puiset kulkukäytävät rakennusten välillä. |
| Rakennusvuosi (päättynyt) | 2007 |
| Käyttöönottovuosi | 2007 |
| Vapautuminen | Sopimuksen mukaan |
| Velaton hinta | 1 300 000 € |
|---|---|
| Myyntihinta | 1 300 000 € |
| Lisätietoja maksuista | Muut ostajan maksut, varainsiirtovero, lainhuutokulut ja kaupanvahvistajan palkkio tai sähköisen kaupankäynnin kustannukset. |
| Sauna |
|
|---|---|
| Tilojen kuvaus | Ikkunoissa on laadukkaat Woodnotes- rullaverhot. |
| Yleiskunto | Hyvä |
| Lämmitysjärjestelmän kuvaus | Puu, muu |
| Asunnon tilat ja materiaalit |
|
|---|---|
| Katto |
|
| Keittiön kuvaus |
|
| WC-tilojen kuvaus |
|
| Saunan kuvaus |
|
| Olohuoneen kuvaus |
|
| Makuuhuoneiden kuvaus |
|
| Kiinteistötunnus/laitostunnus | 445-558-2-0 |
|---|---|
| Kortteli/kiinteistön nimi | Klockskär |
| Tontin pinta-ala | 141,45 ha |
| Tontin omistus | Oma |
| Lisätietoja rakennusoikeudesta | 5 x 200 m², joista yksi rakennuspaikka on rakennettu. Saaresta voi halutessaan lohkoa 4 erillistä rantatonttia. |
| Lisätietoa kaavoituksesta | Eteläisen Nauvon osayleiskaavan mukaan saaressa on yhteensä 5 x RA-vapaa-ajan rakennuspaikkoja |
| Lisätietoa palveluista | Kirjaisissa on ravintola, kauppa ja polttoaineen myynti. |
|---|---|
| Liikenneyhteydet | Venematka saareen, lyhyin venematka mantereelta on Kirjaisista (Kirjais Österudden). |
Tilaa sähköpostiisi esite, joka sisältää kohteen kaikki tiedot ja liitteet.
