« Tillbaka

Höghus 3r+k+bdr+klr+tambur

Tennbyvägen 40, Tennby, Pargas

Vuokra
830,00 €

Koko
74.0 m²

Vuosi
1972

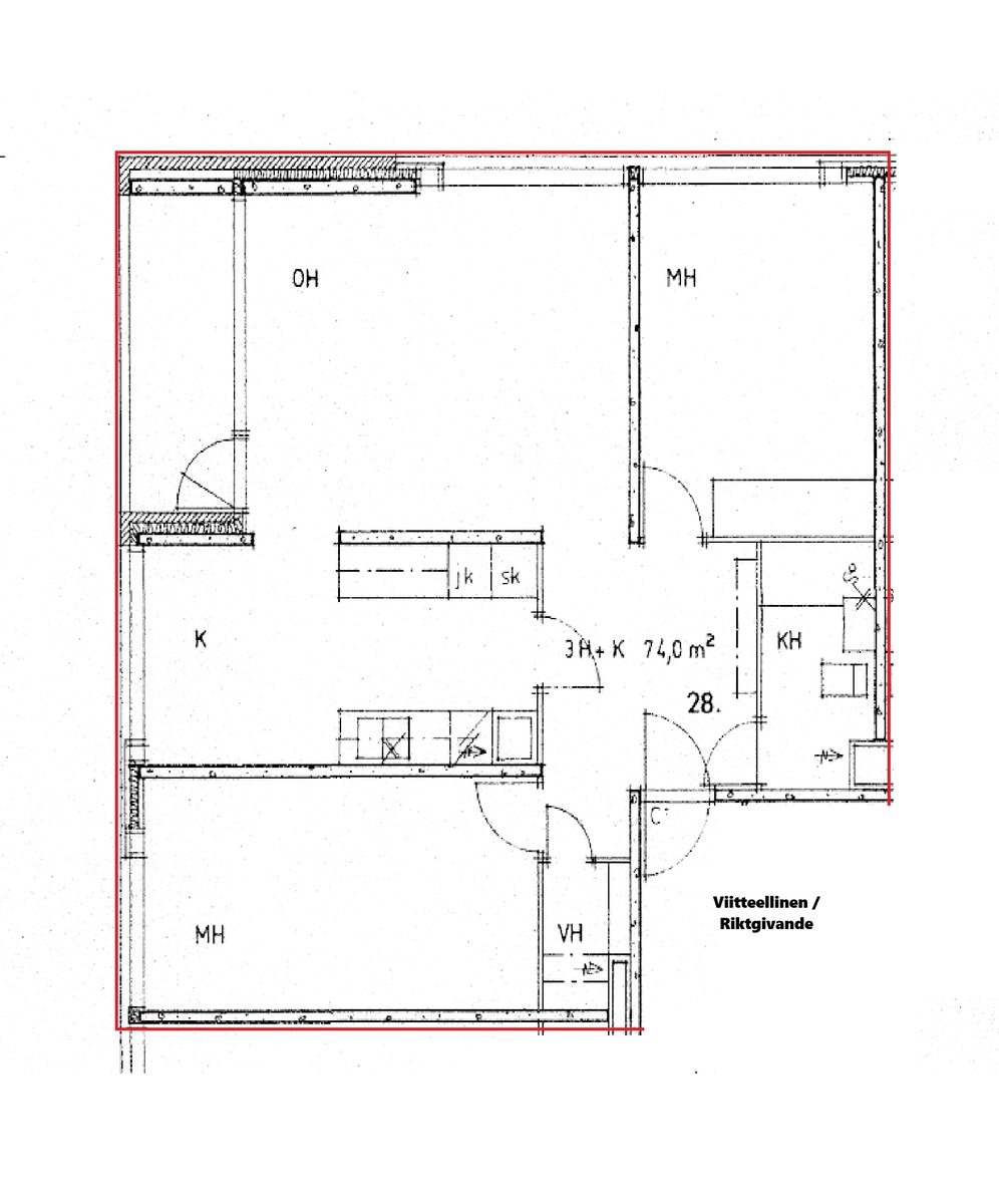
NYRENOVERAD TREA
Tennbyvägen 40 bost 28, ljus och rymlig hörnlägenhet på femte våningen i hisshus. 3 rum + kök med matplats, stor tambur, klädrum och badrum, balkong mot väster, ca 74 m². Genast ledig!
Hyra 830€ + vatten 28€/pers+vattnets grundavgift 10,13€ + ljusfiber 19€. El enligt förbrukning. 2 månaders garanti. Kredituppgifter och betalningsförmågan bör vara i skick. Minst ett års avtal.

Kontakt information
  • Annalotta Santa-Paavola
  • Saaristovälittäjä Oy
  • annalotta.santa-paavola@saaristovalittaja.fi
  • 040 546 4539

Objektnummer20148937
Läge och adress
  • Tennby
  • Tennbyvägen 40
  • 21600
  • Pargas
Objektets typHöghus
Bostadsbeskrivning3r+k+bdr+klr+tambur
Boyta m²74 m²
Totalyta m²74 m²
ArealbasisYhtiöjärjestyksen mukainen, isännöitsijäntodistuksen mukainen
Våning5
Antal våningar6
Byggnadsår (slutfört)1972
Tagande i bruk 1972
Vapautuu01.04.2026

Kuukausivuokra830,00 €
Vattenavgift
  • 28
  • €/hlö/kk
Ytterligare information om avgifterVattnets grundavgift 10,13€/mån Ljusfiber 19€/mån Elektricitet enligt förbrukning. Hyresgästen gör eget elavtal.

Balkongens beskrivning
  • Väderstreck: väster
  • Typ av balkong: indragen
KonditionBra
Lisätietoa kunnostaBostaden är renoverad 2025 med nytt golv, målade väggar och fräschat kök. Balkongglas på kommande.
EnergiklassD2007
Beskrivning av värmesystemFjärrvärme

Bostadens ytor och material
  • Huvudsakligt byggnadsmaterial: betong
Tak information
  • Plattak
  • Filt
Beskrivning av kök
  • Golvmaterial: laminat
  • Väggmaterial: målad
  • Arbetsskiva: laminat
  • Utrustning: diskmaskin, spisfläkt / filter
  • Spis: elspis
  • Kylskåp och frys: kylskåp/frys - kombiskåp
Beskrivning av badrum
  • Golvmaterial: klinker
  • Väggmaterial: kakel
  • Utrustning: tvättmaskinsanslutning, wc, dusch
Beskrivning av vardagsrum
  • Golvmaterial: laminat
  • Väggmaterial: målad
Beskrivning av sovrum
  • Antal:2
  • Golvmaterial: laminat
  • Väggmaterial: målad

Bostadsbolagets namnAs Oy Morrenkala Bostads Ab
Disponentens kontakt informationDispomera Ab
EnergiklassD2007
Gjorda reparationer och renoveringarBruksvattenrören förnyade 1999, fasaden reparerad 2000, bolagets bastu renoverad 2004, hissen renoverad 2006, takfilten förnyad 2007, avloppen sanerade 2012. Trappuppgångens plattor förnyade 2015. Trappuppgången målad 2017. Öppningsmekanism till ytterdörren 2020, belysningen i trappuppgången 2021. Ingången förnyad, värmeväxlarna förnyade, termostaterna till värmeelementen förnyade och ventilerna förnyade 2021. Rengöring av ventilation och reglering 2023.
Kända kommande reparationer/renoveringarI 5års planen förnyande av belysningen i soprummet, fönsterkarmar i ursprungliga fönster målas utvändigt. Målning av röda delarna i fasaden. Granskning av fönstren utvändigt. Installation av brandvarnare 2025. Takreparationer enligt behov 2024-2028.
Tomtareal3198.6 m²
TomtägartypEgen

Tillgängliga tjänsterMatbutik på gångavstånd.
TrafikförbindelserBusshållplats ca 400 m.

« Tillbaka

Vill du veta mera?

Beställ en e-postbroschyr med all information och bilagor om objektet.

Beställ broschyr